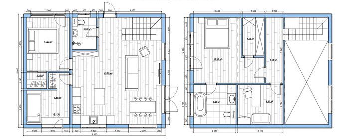
Проект «Искра»

Проект «Искра» Проект «Искра»
Регионы: Омская область, Россия
Отделка: Под ключ
Жилая площадь, м²: 133
Количество комнат: 6
Санузел: Да

Подробное описание проекта уточняйте у производителя

Войти

Зарегистрироваться

Сбросить пароль

Пожалуйста, введите ваше имя пользователя или эл. адрес, вы получите письмо со ссылкой для сброса пароля.