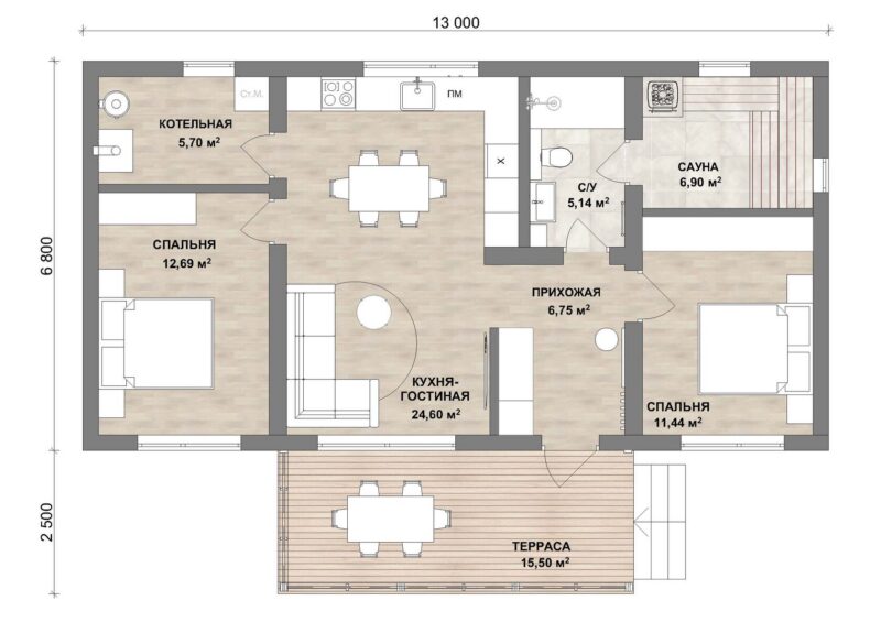
Модульный дом Барн 87
Регионы: Нижегородская область
Отделка: Под ключ
Жилая площадь, м²: 88
Санузел: Да
отличное решение для тех, кто хочет получить качественный дом под ключ в кратчайшие сроки. Ведь сборка займет всего несколько дней!

