Проект «Юртик»

Проект «Юртик» Проект «Юртик»
Регионы: Омская область, Россия
Отделка: Под ключ
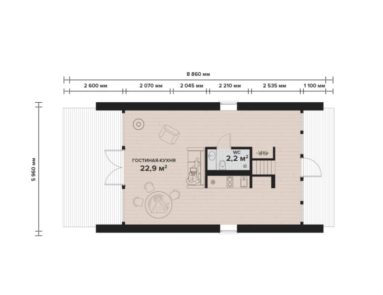
Жилая площадь, м²: 50
Количество комнат: 1
Санузел: Да

Подробное описание проекта уточняйте у производителя

Войти

Зарегистрироваться

Сбросить пароль

Пожалуйста, введите ваше имя пользователя или эл. адрес, вы получите письмо со ссылкой для сброса пароля.