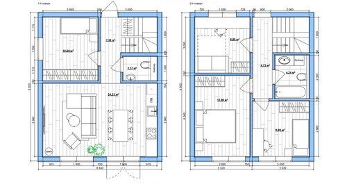
Проект «Чехон»

Проект «Чехон» Проект «Чехон»
Регионы: Омская область, Россия
Отделка: Под ключ
Жилая площадь, м²: 106
Количество комнат: 4
Санузел: Да

Подробное описание проекта уточняйте у производителя

Войти

Зарегистрироваться

Сбросить пароль

Пожалуйста, введите ваше имя пользователя или эл. адрес, вы получите письмо со ссылкой для сброса пароля.