Барн 60

Барн 60 Барн 60
Регионы: Омская область, Россия
Отделка: Под ключ
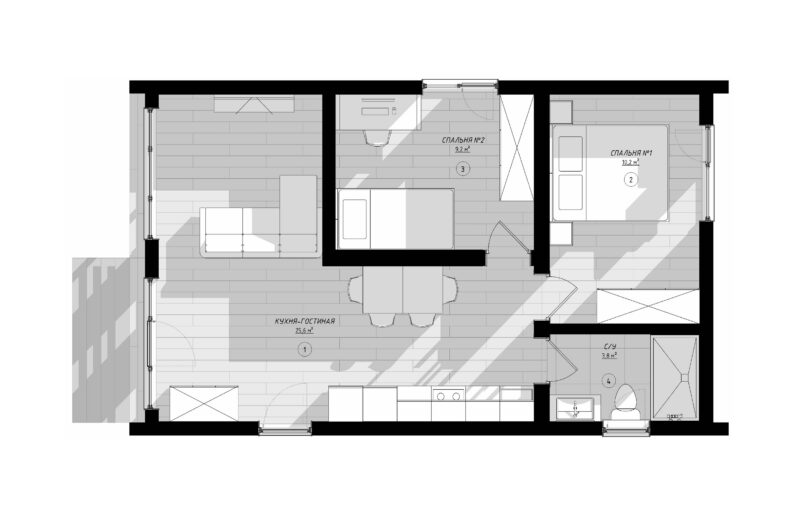
Жилая площадь, м²: 48
Круглогодичное проживание: Да
Срок поставки, недель, от: 4

Модульные дома в стиле «Барн» общей площадью 60 м² с жилой зоной 48.8 м² и потолками 3 м. Выполнен из калиброванной сушёной доски на сваях с обвязкой. Сантехника, электрика, отопление и внутренняя отделка включены.

Войти

Зарегистрироваться

Сбросить пароль

Пожалуйста, введите ваше имя пользователя или эл. адрес, вы получите письмо со ссылкой для сброса пароля.